Attraktives Neubauprojekt in Kuppelwies – Wohnen im idyllischen Ultental
Eckdaten
| Objektart | Wohnung |
|---|---|
| Ort | Ulten |
| Energieklasse | A |
| Konventioniert | ![]() |
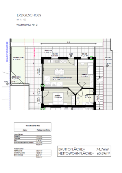
| Gesamtfläche m² | 89.9 |
| Status | Neu |
| Baujahr | 2026 |
| Zustand | Erstbezug |
| ID | IW108405 |
Flächen
| Gesamtfläche m² | 89.9 |
|---|---|
| Nettofläche m² | 60.9 |
| Garten m² | 12.6 |
| Keller m² | 4.8 |
| Balkon/Terrasse m² | 39.8 |
Räume
| Badezimmer | 1 |
|---|---|
| Balkone/Terrassen | 1 |
| Wohn-/Schlafzimmer | 3 |
Ausstattung
| Ausblick | Panoramablick, See, Berge |
|---|
Dateien
Beschreibung
In traumhafter, ländlicher Lage von Ultental entsteht in Kuppelwies ein hochwertiges Neubauprojekt mit insgesamt 9 modernen Wohneinheiten, verteilt auf zwei Baukörper. Hier verbindet sich naturnahes Wohnen mit zeitgemäßem Wohnkomfort – ideal für alle, die Ruhe, Lebensqualität und eine starke Dorfgemeinschaft schätzen.
Die Wohnungen werden im Baustandard Klimahaus A Nature errichtet und garantieren somit höchste Energieeffizienz, nachhaltige Bauweise und niedrige Betriebskosten. Kellerabteile befinden sich direkt im Untergeschoss und sind als Zubehör bequem erreichbar. Einzel- und Doppelgaragen können ebenfalls zusätzlich erworben werden.
Die Lage überzeugt auf ganzer Linie: In unmittelbarer Nähe befindet sich die Umlaufbahn ins Ski- und Wandergebiet Schwemmalm – ein wahres Paradies für Wintersportler und Naturliebhaber. Zudem erreichen Sie bequem zu Fuß einen Eislaufplatz, eine Langlaufloipe sowie zahlreiche herrliche Wanderwege. Auch die Infrastruktur lässt keine Wünsche offen: Ein Gasthaus, eine Pizzeria und mehrere Bars befinden sich in unmittelbarer Umgebung und sind fußläufig erreichbar.
Die Wohnungen sind zu 100 % konventioniert (Art. 39 LG Nr. 9/2018), das heißt, sie dürfen nur von Ansässigen bzw. Personen mit Arbeitsvertrag in der Provinz Südtirol als Hauptwohnsitz besetzt werden und können somit nicht als Feriendomizil dienen.
Aktuell verfügbar sind noch 2-, 3- und 4-Zimmerwohnungen – ideal für Singles, Paare und Familien.
Zögern Sie nicht und sichern Sie sich eine begehrte Neubauimmobilie in Kuppelwies – Wohnqualität in bester Lage erwartet Sie!
Für nähere Informationen stehen wir Ihnen gerne in unserer Agentur zur Verfügung.
(Die Visualisierungen/Renderings dienen der Veranschaulichung. Abweichungen bzw. Änderungen in der finalen Ausführung vorbehalten).
Anbieter

J. Unterholzner
Maria-Hilf-Straße Nr. 24
39011 Lana

Login
Password vergessen
Merken



