Ausstattung
| Böden | Fliesen, Parkett |
|---|
| Gartennutzung |  |
|---|
| Möbliert | Vollmöbliert |
|---|
Technik
| Heizungsart | Fussbodenh. |
|---|
| Befeuerung | Gas |
|---|
| Fahrstuhl | Personenaufzug |
|---|
Sonstige
Beschreibung
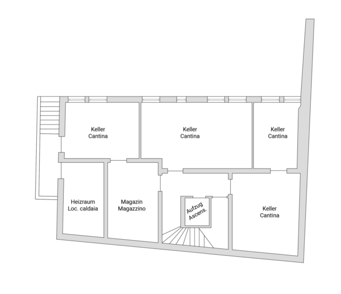
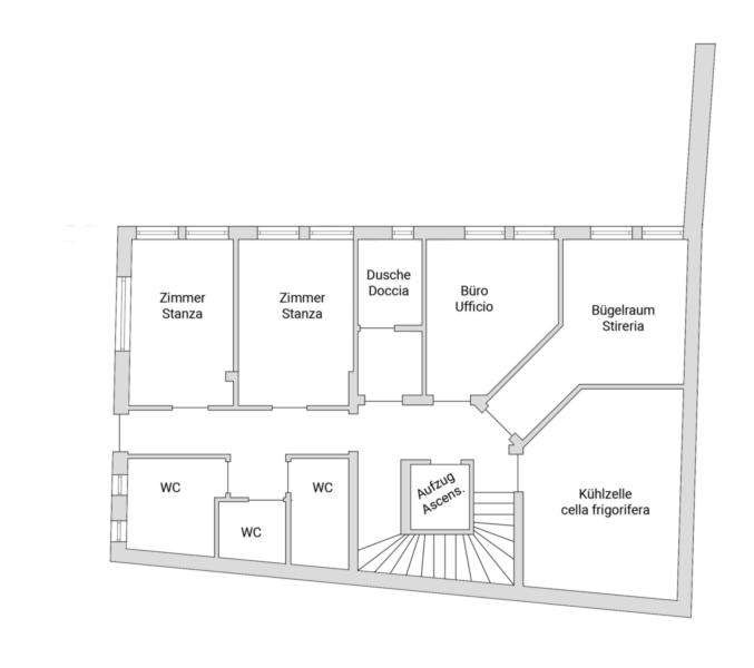
Wir verkaufen im Zentrum von Prissian, direkt am Fluss gelegen, das Restaurant/Pizzeria „Zur Brücke“. Im Erdgeschoss befinden sich die Bar, Pizzeria, Küche, eine getäfelte Stube sowie eine tolle Terrasse direkt am Fluss mit Aussicht auf „Schloss Katzenzungen“. Im Untergeschoss befinden sich verschiedene Lagerräume samt Kühlzelle, ein Büro, ein Personalzimmer, die Toiletten sowie der Heizraum. Im 1. Obergeschoss eine Zwei-Zimmer-Wohnung und eine Drei-Zimmer-Wohnung welche ideal für die Beherbergung vom Personal sind.