Das Haus am Waldrand
Eckdaten
| Objektart | Haus / Ferienhaus |
|---|---|
| Ort | Schnals |
| Energieklasse | G |
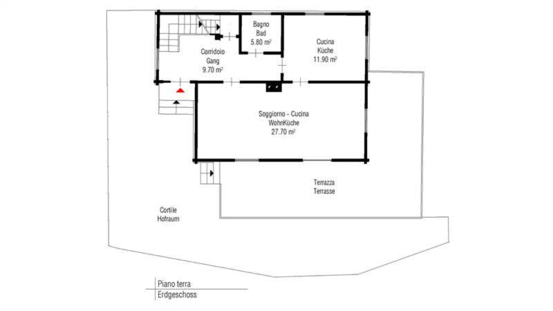
| Gesamtfläche m² | 170.0 |
| Status | Gebraucht |
| Baujahr | 1956 |
| Zustand | Gepflegt |
| ID | IW108022 |
Details
| Gesamtfläche m² | 170.0 |
|---|---|
| Nettofläche m² | 113.0 |
Beschreibung
Charmantes Holzhaus aus den 50ern am Waldrand als ein Stück authentisches Schnalstal.
Nur einen Steinwurf vom geschichtsträchtigen etwa 200 Seelen Klosterdorf Karthaus - einst die Kartause Allerengelberg, ein 1326 gestiftetes Kloster des Kartäuserordens - im bekannten Schnalstal (Fundort von Ötzi) bieten wir diese einmalige Immobilie an.
Hier findest du die seltene Kombination aus absoluter Ruhe, den Duft des Waldes und die unmittelbare Nähe zum kulturellen Herz des Tales.
Dieses in den 50er Jahren errichtete Holzhaus ist ein echtes Original. Es verkörpert die Schlichtheit und Gemütlichkeit einer vergangenen Ära. Obwohl das Haus in die Jahre gekommen ist, bietet es eine solide Basis für Individualisten.
Lass dich von der Aura dieses Gebäudes inspirieren !
Für weitere Informationen stehen wir gerne zur Verfügung.

Login
Password vergessen
PDF laden/drucken
Merken












