Ausstattung
| Heizungsart | Fussbodenh. |
|---|
| Befeuerung | Fernwärme |
|---|
| Fahrstuhl | Personenaufzug |
|---|
| Kabel/Sat/TV |  |
|---|
Beschreibung
Neubauprojekt CASTANI – Wohnen mit Qualität
Das CASTANI ist ein hochwertiges Neubauprojekt in sonniger Hanglage oberhalb von Schlanders. Die moderne, zeitlose Architektur fügt sich harmonisch in die gewachsene Dorfstruktur ein und bietet ein hohes Maß an Wohnqualität, Privatsphäre und Nachhaltigkeit.
Die Wohneinheiten überzeugen durch durchdachte Grundrisse, helle Wohnräume sowie private Außenflächen wie Terrassen, Loggien oder Gärten. Natürliche Materialien und eine hochwertige Bauausführung sorgen für ein angenehmes Wohngefühl und langfristige Wertbeständigkeit.
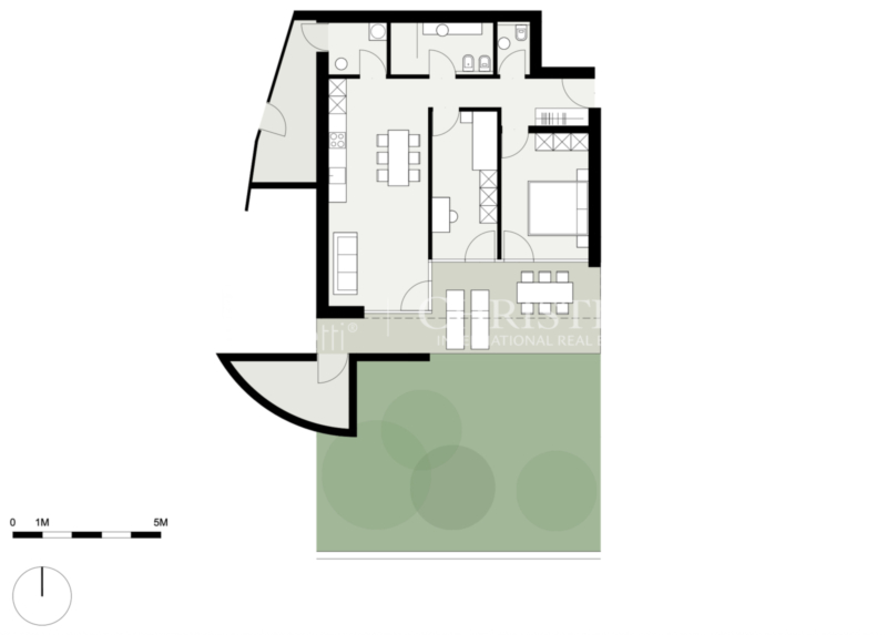
Konventionierte Erdgeschosswohnung mit Garten
Diese konventionierte Erdgeschosswohnung überzeugt durch einen sonnigen Privatgarten und herrlichen Bergblick.
Der großzügige Wohnbereich mit Küchenzeile öffnet sich zur Loggia und zum Garten. Zwei Schlafzimmer bieten direkten Terrassen- und Gartenzugang. Ergänzt wird das Raumangebot durch ein Hauptbadezimmer, ein separates Tages-WC sowie zwei Kellerräume.