Ausstattung
Heizungsart | Fussbodenh. |
---|
Befeuerung | Solar, Fernwärme |
---|
Kabel/Sat/TV |  |
---|
Beschreibung
Wohnen auf ikonischem Niveau – ein Architektenhaus als Unikat
Hier wurde kein Haus gebaut, sondern ein Lebensgefühl entworfen. Ein Zuhause, das durch seine Formensprache und Atmosphäre mehr an eine architektonische Skulptur erinnert als an klassische Wohnarchitektur. Reduziert, lichtdurchflutet, präzise komponiert – dieses Anwesen ist eine Rarität für Menschen, die Design und Klarheit lieben.
Architektur, die wirkt
Die klare Linienführung, die außergewöhnlichen Raumhöhen und die raumhohen Verglasungen inszenieren das Licht wie in einer Galerie. Innen und Außen verschmelzen zu einem offenen Raumgefüge, das Großzügigkeit ausstrahlt und gleichzeitig Geborgenheit schenkt.
Jedes Detail ist durchdacht: maßgefertigte Einbaumöbel aus massiver Eiche, ein harmonisches Materialkonzept und Sichtachsen, die Architektur erlebbar machen. Nichts wirkt zufällig, alles folgt einer stringenten gestalterischen Idee – und das macht dieses Haus zu einem Statement.
Highlights im Überblick
- Offener Wohnbereich mit Galeriecharakter
- Fließende Übergänge von Wohnraum zu Terrasse und Garten
- Beeindruckende Raumhöhen und großflächige Verglasungen
- Maßgeschneiderte Eichenmöbel als integraler Bestandteil des Designs
- Hochwertiger Eichenboden als warmes Gegengewicht zur minimalistischen Architektur
- Private Loggia im Obergeschoss – ein intimer Rückzugsort
Raumkomposition
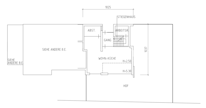
Untergeschoss: zwei Kellerräume, ein Abstellraum, separates WC sowie ein zentraler Gang mit Treppe in die oberen Etagen
Erdgeschoss: Eingangsbereich, die großzügige, helle Wohnküche mit direktem Zugang zu Terrasse und Garten und zwei kleine Räume
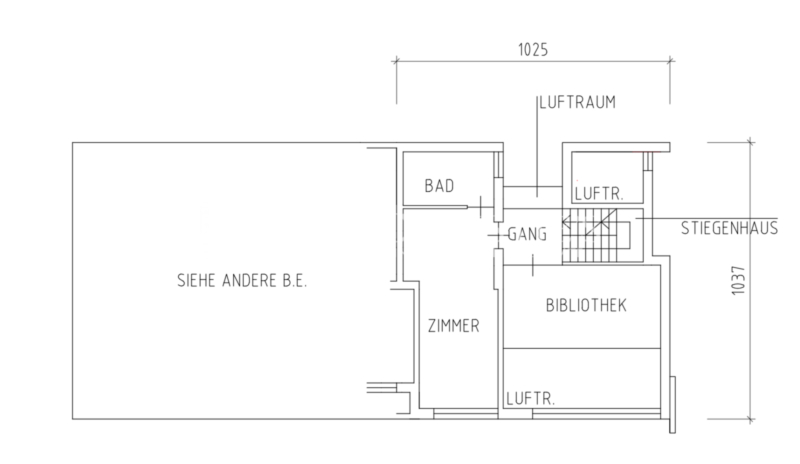
Obergeschoss: Master-Bedroom mit begehbarem Schrank und en suite Badezimmer, offene Bibliothek/Galerie mit Atrium
Dachgeschoss: zwei Schlafzimmer mit Balkon, Badezimmer, Gang sowie eine private Dachterrasse
Im Hofbereich stehen zwei Auto-Stellplätze sowie Fahrradparkmöglichkeiten zur Verfügung.