Großzügige 5-Zimmer-Wohnung mit Teilungspotenzial in 2 Einheiten, Garage, großem Keller & Bergblick – Meran

Eckdaten

ObjektartWohnung
OrtMeran
Zimmer5
Etage4
Kaufpreis535'000 €
Gesamtfläche m²157.0
Baujahr1977
IDIW108445

Aktionen

PDF laden/drucken remove favorite Merken
Auf ein Bild klicken zum Vergrößern

Preise

Kaufpreis535'000 €

Flächen

Gesamtfläche m²157.0
Nettofläche m²128.0

Räume

Badezimmer2
Wohn-/Schlafzimmer4
Stellplätze1

Ausstattung

UnterkellertJa

Beschreibung



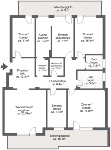
Diese großzügige 5-Zimmer-Wohnung im 4. Obergeschoss eines Mehrparteienhauses mit neuem Aufzug vereint Wohnkomfort, strategische Flexibilität und attraktives Investmentpotenzial.

Besonders hervorzuheben ist die Möglichkeit zur Abtrennung in zwei eigenständige Dreizimmerwohnungen. Eine entsprechende Variante ist in den Grundrissen bereits dargestellt. Dadurch eignet sich die Immobilie ideal für Kapitalanleger, Mehrgenerationennutzung oder die Kombination aus Eigennutzung und Vermietung – mit entsprechendem Rendite- und Wertsteigerungspotenzial.

Raumaufteilung & Wohnqualität

Die Wohnung umfasst:

- großzügigen Eingangsbereich

- helles Wohnzimmer mit Kamin

- separates Arbeitszimmer

- drei weitere Schlafzimmer

- Esszimmer direkt angrenzend an die Küche

- Garderobe

- Badezimmer mit Fenster und Badewanne

- separates Tages-WC mit Dusche

Ein Balkon mit Süd-Ost-Westausrichtung ist vom Wohnzimmer, Arbeitszimmer sowie einem Schlafzimmer aus zugänglich und bietet ganztägig optimale Lichtverhältnisse sowie freien Blick auf die umliegende Bergwelt.

Ein zweiter Balkon mit Nord-West-Ostausrichtung ist von zwei Schlafzimmern sowie vom Esszimmer erreichbar.

 

Modernisierungen

- Neue Küche (2022)

- Fenster und Heizkörper erneuert (2014)

- Neuer Aufzug

 

Zusätzlicher Mehrwert

- Großzügiger Keller mit ca. 16,5 m²

- Garage im Kaufpreis enthalten

- Kondominialer Gemeinschaftsraum mit fix zugewiesenen Fahrradstellplätzen

- Spielplatz sowie Einrichtungen des täglichen Bedarfs in unmittelbarer Nähe

 

Perspektive & Potenzial

Die Kombination aus Größe, zwei Balkonen, klarer Raumstruktur und der Möglichkeit zur Teilung macht diese Immobilie zu einer nachhaltig interessanten Investition mit Entwicklungsspielraum.

Die Wohnung ist nicht konventioniert und somit frei nutzbar.

Anbieter

Seeber Immobilien GmbH
Laubengasse 70
39100 Bozen
Tel.
+39/339/8281766
Mob.
+39/340/3806901
Schließen