Großes Einfamilienhaus mit Potenzial

Eckdaten

ObjektartHaus / Einfamilienhaus
OrtLeifers
Energieklasse
G
Kaufpreis699'000 €
Gesamtfläche m²275.0
StatusGebraucht
Baujahr1969
ZustandGepflegt
IDIW106487

Aktionen

PDF laden/drucken remove favorite Merken
Auf ein Bild klicken zum Vergrößern

Details

Kaufpreis699'000 €
Gesamtfläche m²275.0

PKW

Art Anzahl Preis
Garage 1
Autoabstellplatz 3

Beschreibung

Dieses Einfamilienhaus in ruhiger, interner Lage bietet ein hohes Maß an Privatsphäre und Gestaltungsspielraum. Es befindet sich auf einem großzügigen Privatgrundstück von rund 900 m², das reichlich Platz für Garten, Sitzbereiche oder zusätzliche Nutzungsmöglichkeiten bietet. Dank seiner soliden Struktur und durchdachten Aufteilung auf vier Etagen eignet sich die Immobilie sowohl als großes Einfamilienhaus als auch – bei entsprechendem Ausbau – als Zwei- oder Dreifamilienhaus.
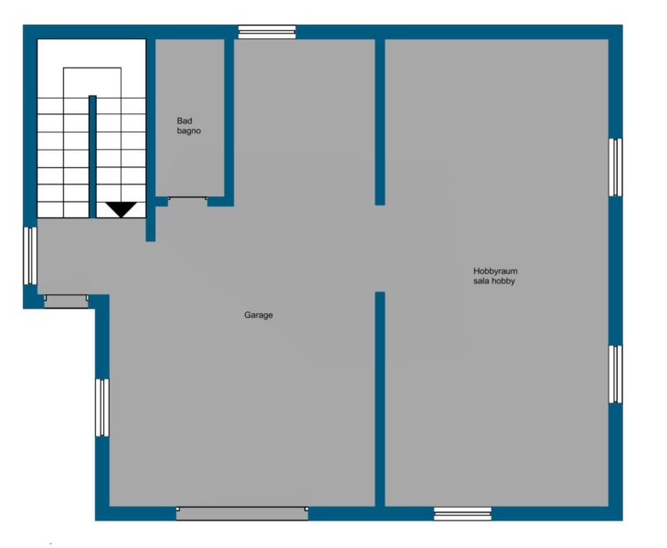
Im Untergeschoss befinden sich zwei geräumige Kellerräume, die sich ideal für Lagerzwecke, eine kleine Werkstatt oder als Weinkeller eignen. Das Erdgeschoss beherbergt eine Garage, ein Badezimmer sowie einen Hobbyraum, der sich flexibel nutzen lässt – etwa als Fitnessbereich, Atelier oder zusätzlicher Wohnraum.
Der erste Stock bildet den zentralen Wohnbereich und umfasst eine großzügige 3-Zimmer Wohnung, die dank ihrer durchdachten Raumaufteilung und Helligkeit ein angenehmes Wohngefühl vermittelt. Das Dachgeschoss rundet das Raumangebot ab und kann als Dachraum oder Ausbaureserve genutzt werden – perfekt für Gästezimmer, Büro oder ein Atelier mit Blick ins Grüne.
Ein weiterer Pluspunkt: Die autonome Gas-Heizung wurde vor Kurzem erneuert, was nicht nur für Energieeffizienz, sondern auch für langfristige Betriebssicherheit sorgt.
Dieses Haus ist ideal für Familien oder Investoren, die ein vielseitiges Objekt mit großem Potenzial suchen – eingebettet in eine ruhige Umgebung und dennoch gut erreichbar.

Anbieter

Rimmo Immobilien Südtirol
Innsbrucker Straße 29
39100 Bozen
Tel.
+39 0471 982 844
Schließen