Wohnen über den Weinbergen – Panoramawohnung zum Verlieben
Eckdaten
| Objektart | Wohnung / Dachgeschoss |
|---|---|
| Ort | Kurtatsch an der Weinstraße |
| Strasse, Hausnr | Penon |
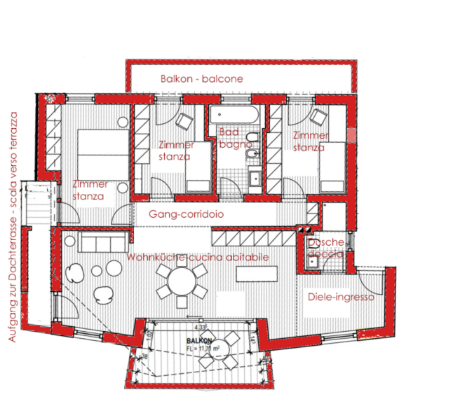
| Zimmer | 4 |
| Etage | 1 von 1 |
| Kaltmiete | 1'300 € |
| Gesamtfläche m² | 146.0 |
| Status | Gebraucht |
| Baujahr | 2024 |
| Zustand | Neuwertig |
| ID | IW109247 |
Details
| Kaltmiete | 1'300 € |
|---|---|
| Nebenkosten | 100 € |
| Gesamtfläche m² | 146.0 |
PKW
| Art | Anzahl | Preis |
|---|---|---|
| Garage | 2 |
Beschreibung
Wohnen über den Weinbergen – Panoramawohnung zum Verlieben
Inmitten der malerischen Weinlandschaft von Kurtatsch an der Weinstraße erwartet Sie diese exklusive Vierzimmerwohnung, die modernes Wohnen mit Ruhe, Natur und einem atemberaubenden Ausblick vereint. Hoch über dem Unterland in der Fraktion Penon gelegen, genießen Sie hier täglich ein Panorama, das seinesgleichen sucht.
Die neuwertige Wohnung befindet sich in einem hochwertigen Klimahaus A, erst kürzlich fertiggestellt, und überzeugt durch klare Linien, helle Räume und eine durchdachte Raumaufteilung. Wohnen auf rund 100 m², mit drei Schlafzimmern, zwei stilvollen Bädern und einer großzügigen Wohnküche, die zum Mittelpunkt des täglichen Lebens wird.
Ein Balkon sowie die traumhafte Dachterrasse laden dazu ein, den Blick über die Weinberge schweifen zu lassen, Sonnenuntergänge zu genießen und die besondere Atmosphäre dieses Ortes auf sich wirken zu lassen.
Dank komfortabler Fußbodenheizung, moderner Bauweise und hochwertiger Ausstattung bietet die Wohnung höchsten Wohnkomfort. Zwei überdachte Autoabstellplätze runden dieses attraktive Angebot ab.
Diese Immobilie richtet sich an Mieter mit Anspruch, die Wert auf Qualität, Ruhe und eine außergewöhnliche Lage legen. Langfristige Vermietung, Nichtraucher, keine Haustiere und gute Referenzen sind Voraussetzung.
Wichtig: Diese Wohnung hat eine Landesbindung und kann nur an Landesansässige Personen oder hier arbeitende Personen vermietet werden.
Einziehen, ankommen, genießen – die Wohnung ist ab den 1. November 2026 verfügbar.
Anbieter

Zingerle Stefan
Drususallee 287
39100 Bozen

Login
Password vergessen
PDF laden/drucken
Merken







