GROSSZÜGIGE MAISONETTE WOHNUNG MIT TERRASSE UND GARAGE
Eckdaten
| Objektart | Wohnung / Dachgeschoss |
|---|---|
| Ort | Gargazon |
| Zimmer | 3 |
| Etage | 3 |
| Kaufpreis | 450'000 € |
| Nettofläche m² | 98.0 |
| Baujahr | 2000 |
| ID | IW107832 |
Details
| Kaufpreis | 450'000 € |
|---|---|
| Nettofläche m² | 98.0 |
| Schlafzimmer | 2 |
| Badezimmer | 1 |
Ausstattung
| Befeuerung | Gas |
|---|---|
| Klimatisiert | ![]() |
| Fahrstuhl | Personenaufzug |
| Kabel/Sat/TV | ![]() |
Beschreibung
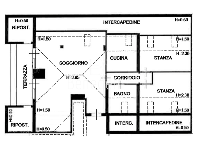
Diese charmante Dachgeschosswohnung in Maisonette-Ausführung besticht durch ihren besonderen Wohncharakter mit hochwertigem Holzoberboden und sichtbaren Holzbalken, die für eine warme und einladende Atmosphäre sorgen.
Die Wohnung befindet sich im dritten und letzten Stockwerk und bietet eine durchdachte Raumaufteilung:
Ein großzügiges und lichtdurchflutetes Wohnzimmer mit Küchennische und direktem Zugang zur Terrasse, ideal für entspannte Stunden im Freien. Zwei praktische Abstellräume auf der linken und rechten Seite der Terrasse bieten zusätzlichen Stauraum. Es gibt zwei große Schlafzimmer sowie ein Badezimmer mit Dachfenstern.
Im 1. Kellergeschoss befindet sich ein eigener Kellerraum und im 2. Kellergeschoss finden Sie eine Garage mit ca. 22 m², komfortabel befahrbar.
Die Wohnung eignet sich ideal für Familien, Paare mit Platzbedarf oder auch als Ferienwohnung. Durch den offenen Grundriss und die natürliche Materialwahl bietet sie zudem hervorragende Möglichkeiten für einen individuellen, personalisierbaren Einrichtungsstil.
Anbieter

Leonardo da Vinci Str. 9
39012 Meran

Login
Password vergessen
PDF laden/drucken
Merken















