Ausstattung
| Gartennutzung |  |
|---|
| Heizungsart | Zentral |
|---|
| Befeuerung | Öl |
|---|
Beschreibung
In ruhiger, sonniger Hanglage am Ende einer Sackgasse in Gargazon wartet dieses charmante Haus auf neue Ideen und Gestaltungsfreude. Derzeit in drei Wohneinheiten unterteilt, bietet es vielfältige Möglichkeiten zur Neugestaltung – besonders die Zusammenlegung von zwei Einheiten zu einer großzügigen Hauptwohnung mit separater Einliegerwohnung bietet sich an. Jede Einheit verfügt über potenzielle Außenflächen, die das Wohnerlebnis zusätzlich aufwerten. Eine Doppelgarage sowie zwei zusätzliche Stellplätze vor dem Haus sorgen für bequeme Parkmöglichkeiten. Direkt angrenzend beginnt der Wald – ein kleines, zum Grundstück gehörendes Stück Natur inklusive. Das Haus bringt gute bauliche Voraussetzungen für eine Sanierung mit und eignet sich ideal für Menschen, die ihr Zuhause mit eigenen Händen gestalten möchten – inmitten von Ruhe, Sonne und viel Potenzial.
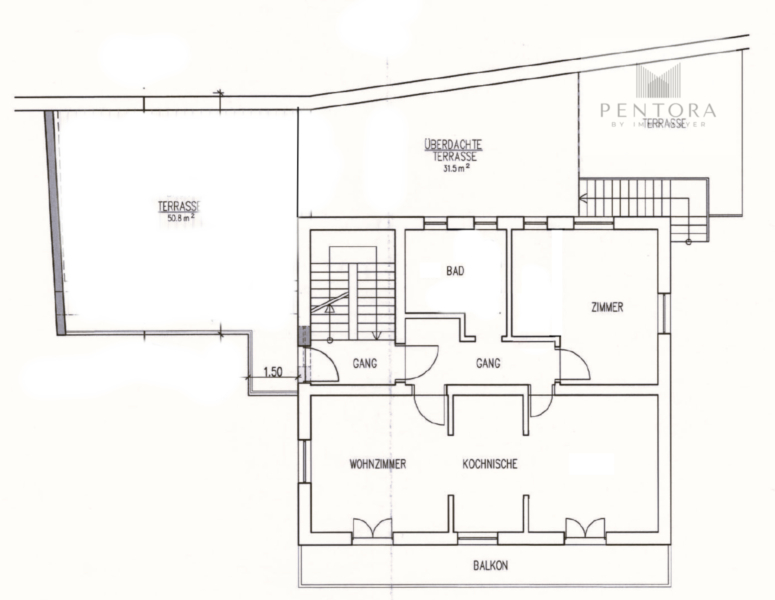
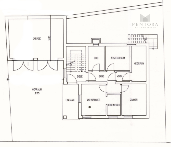
Handelsfläche: ca. 290 m²
Nettowohnfläche: ca. 173 m²
Etage: 0-3
Ausrichtung: Norden, Westen
Balkone/Terrassen: ca. 137 m²
Garten: ca. 51 m²
Wald: ca. 400 m²
Aufzug: nein
Heizung: Zentralheizung mit Öl
Konventioniert: nein
Alle Angaben sind als Richtwerte zu betrachten.
Für weitere Fragen oder einen unverbindlichen Besichtigungstermin stehen wir jederzeit gerne zur Verfügung.
IMMO MAYER vGmbH | srls | Romstraße | via Roma 102 | 39012 Meran | o | +39 0473 421778 | info@immo-mayer.com | www.immo-mayer.com