Ausstattung
| Gartennutzung |  |
|---|
| Möbliert | Teilmöbliert |
|---|
| Befeuerung | Gas, Solar |
|---|
| Unterkellert | Ja |
|---|
Beschreibung
In herrlich ruhiger Panoramalage oberhalb von Malcesine befindet sich diese freistehende Villa, eingebettet in ein weitläufiges Grundstück mit gepflegten Grünflächen und Olivenbäumen.
Die im Jahr 2008 errichtete Immobilie bietet ein hohes Maß an Privatsphäre.
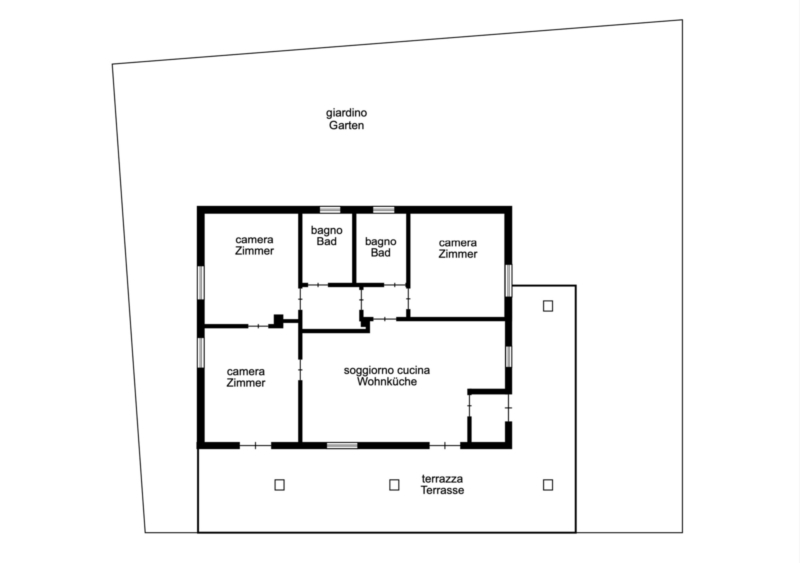
Die Villa erstreckt sich über zwei Ebenen und überzeugt durch eine klare, komfortable Raumaufteilung.
Auf der Hauptebene im Erdgeschoss befindet sich der Wohn- und Schlafbereich, bequem auf einer Ebene.
Eine großzügige Wohnküche bildet das Herzstück des Hauses und öffnet sich über große Fensterflächen direkt zur Terrasse und zum Garten, wo sich das Panorama über den See und die umliegende Landschaft eindrucksvoll entfaltet.
Drei helle Doppelzimmer und zwei Badezimmer ergänzen diesen Bereich und schaffen ein harmonisches Wohnambiente mit fließenden Übergängen zwischen Innen- und Außenbereich.
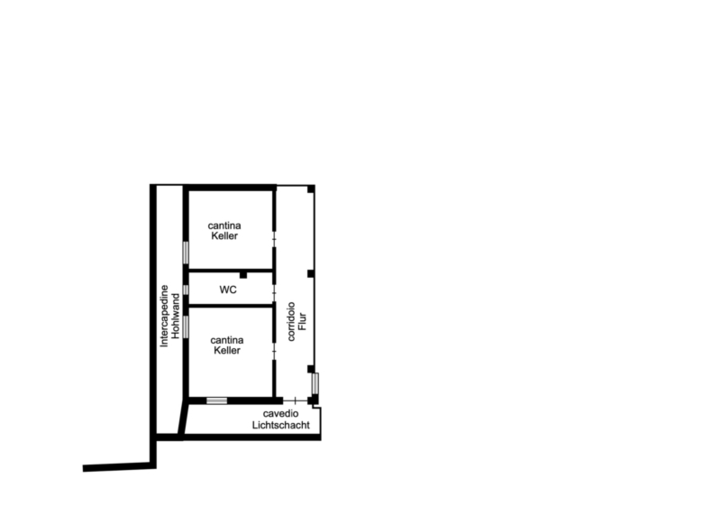
Im Untergeschoss befindet sich eine große Garage mit Platz für mehrere Fahrzeuge sowie eine beheizte Taverne mit Küche und einem weiteren Hobbyraum, der dank der Lichtschächte vielseitig genutzt werden kann. Ein zusätzliches Badezimmer rundet diese Ebene ab.