W2 - Zweizimmerwohnung mit Terrasse und Balkon

Eckdaten

ObjektartWohnung / Etage
OrtEnneberg
Strasse, HausnrStraße Gran Prè 32
Zimmer2
Etage1
KaufpreisPreis auf Anfrage
Gesamtfläche m²68.2
Baujahr2025
IDIW108993

Aktionen

PDF laden/drucken remove favorite Merken
Auf ein Bild klicken zum Vergrößern

Preise

KaufpreisPreis auf Anfrage

Flächen

Gesamtfläche m²68.2
Nettofläche m²47.1
Balkon/Terrasse m²13.9

Räume

Schlafzimmer1
Badezimmer1

Ausstattung

HeizungsartFussbodenh.
BefeuerungGas

Beschreibung

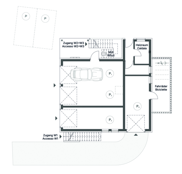
Neue, konventionierte Zweizimmerwohnung mit Wohnküche, einem Schlafzimmer, einem Badezimmer, Terrasse und Balkon. Zur Wohnung gehören außerdem ein Garagenstellplatz mit einem Schrank, eine Fahrradgarage sowie ein Müllraum.

Die Wohnung ist konventionert und somit nicht als Ferienwohnung geeignet.

Willkommen im Montal, einem Ortsteil der idyllischen Berggemeinde Enneberg, gelegen in einem Seitenarm des Gadertals. Hier entsteht ein modernes Klimahaus A Gebäude mit Holz-Außenverkleidung mit insgesamt nur drei Wohneinheiten, allesamt in hochwertiger Ausführung. Im Kaufpreis inbegriffen sind ein bzw. zwei Garagenstellplätze, jeweils ein Außenstellplatz sowie Garagenstellplätze für Fahrräder.
Enneberg liegt am Rande des Naturparks Fanes-Sennes-Prags und bietet einen traumhaften Blick auf die Dolomiten. Der Naturpark ist das ganze Jahr über ein Paradies für Outdoor-Enthusiasten – ideal zum
Wandern, Mountainbiken, Rodeln und mehr. Im Winter profitieren Schneesportler von der Lage am Fuße des Südtiroler Skiberg Nummer 1, dem Kronplatz.

Anbieter

Castellanum
Trattengasse 7
39042 Brixen
Tel.
0472201250
Schließen