Gepflegte 3-Zimmer Wohnung mit zwei Terrassen

Eckdaten

ObjektartWohnung / Dachgeschoss
OrtBurgstall
Zimmer3
Energieklasse
G
Kaufpreis395'000 €
Gesamtfläche m²116.0
StatusGebraucht
Baujahr1970
ZustandGepflegt
IDIW107343

Aktionen

PDF laden/drucken remove favorite Merken
Auf ein Bild klicken zum Vergrößern

Details

Kaufpreis395'000 €
Nebenkosten67 €
Gesamtfläche m²116.0

PKW

Art Anzahl Preis
Garage 1 25000 €

Beschreibung

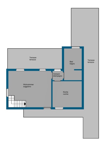
Diese gepflegte 3-Zimmer Wohnung erstreckt sich über den ersten und zweiten Stock, wobei der zweite Stock zugleich der letzte des Gebäudes ist. Dadurch genießt die Immobilie eine besonders ruhige Wohnatmosphäre sowie viel Licht und Privatsphäre.
Die Wohnung wurde 2017 vollständig und hochwertig saniert und präsentiert sich heute in einem modernen, einladenden Zustand – ideal für all jene, die ohne weiteren Renovierungsaufwand einziehen möchten.
Im ersten Stock, der den zentralen Wohnbereich bildet, befinden sich das helle Wohnzimmer und die moderne Küche. Auf derselben Ebene liegen auch die beiden großzügigen Terrassen, die den Wohnraum harmonisch nach außen erweitern. Sie eignen sich perfekt für Mahlzeiten im Freien, gemütliche Lounge-Momente oder einfach zum Genießen der Sonne.
Über eine interne Treppe gelangt man in den zweiten und letzten Stock, der die Schlafetage bildet. Hier stehen zwei geräumige Schlafzimmer sowie ein Badezimmer zur Verfügung – eine ideale Aufteilung für Paare, Familien oder Personen, die zusätzlichen Raum für Gäste oder Home-Office benötigen.
Eine Garage kann für 25.000 € extra erworben werden und rundet dieses attraktive Angebot komfortabel ab.
Die Wohnung überzeugt durch ihre gepflegte Erscheinung, ihre durchdachte Raumaufteilung und die beiden großen Außenbereiche, die selten in dieser Form zu finden sind.

Anbieter

Rimmo Immobilien Südtirol
Innsbrucker Straße 29
39100 Bozen
Tel.
+39 0471 982 844
Schließen