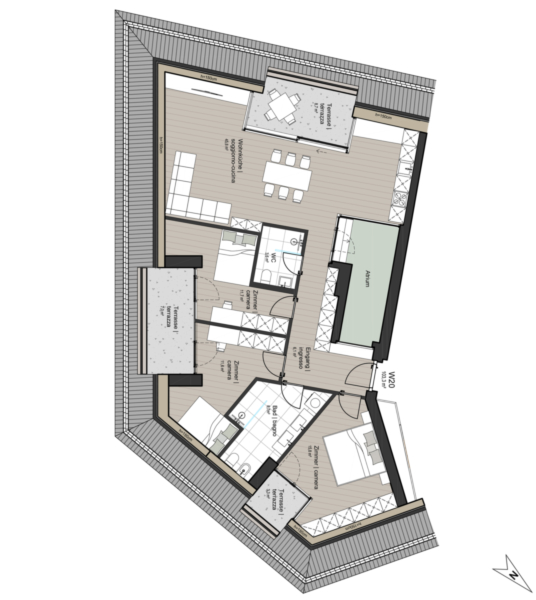
A20 - Dachgeschosswohnung mit drei Terrassen
Eckdaten
| Objektart | Wohnung / Etage | 
|---|---|
| Ort | Brixen | 
| Strasse, Hausnr | Via Vittorio Veneto 43 | 
| Zimmer | 4 | 
| Etage | 3 | 
| Kaufpreis | 976'000 € | 
| Gesamtfläche m² | 141.5 | 
| ID | IW99801 | 
Preise
| Kaufpreis | 976'000 € | 
|---|
Flächen
| Gesamtfläche m² | 141.5 | 
|---|---|
| Nettofläche m² | 100.2 | 
| Garten m² | 9.1 | 
| Keller m² | 5.6 | 
| Balkon/Terrasse m² | 18.3 | 
Räume
| Schlafzimmer | 3 | 
|---|---|
| Badezimmer | 2 | 
Ausstattung
| Gartennutzung |  | 
|---|---|
| Heizungsart | Fussbodenh. | 
| Befeuerung | Fernwärme | 
| Fahrstuhl | Personenaufzug | 
| Unterkellert | Ja | 
Beschreibung
Im Dachgeschoss befindet sich diese geräumige Vierzimmerwohnung, die über eine große Wohnküche, drei Schlafzimmer, ein Badezimmer, ein Gäste-WC, drei Terrassen und einen Garten verfügt. Zusätzlich gibt es einen Keller im 2. Untergeschoss.

 Login
 Login Password vergessen
 Password vergessen PDF laden/drucken
 PDF laden/drucken Merken
 Merken








