Ihr neues Zuhause in Milland – Reihenhaus mit Garage und viel Gestaltungsspielraum

Eckdaten

ObjektartWohnung
OrtBrixen
Zimmer8
Kaufpreis580'000 €
Gesamtfläche m²173.0
IDIW107560

Aktionen

PDF laden/drucken remove favorite Merken
Auf ein Bild klicken zum Vergrößern

Details

Kaufpreis580'000 €
Gesamtfläche m²173.0

Beschreibung

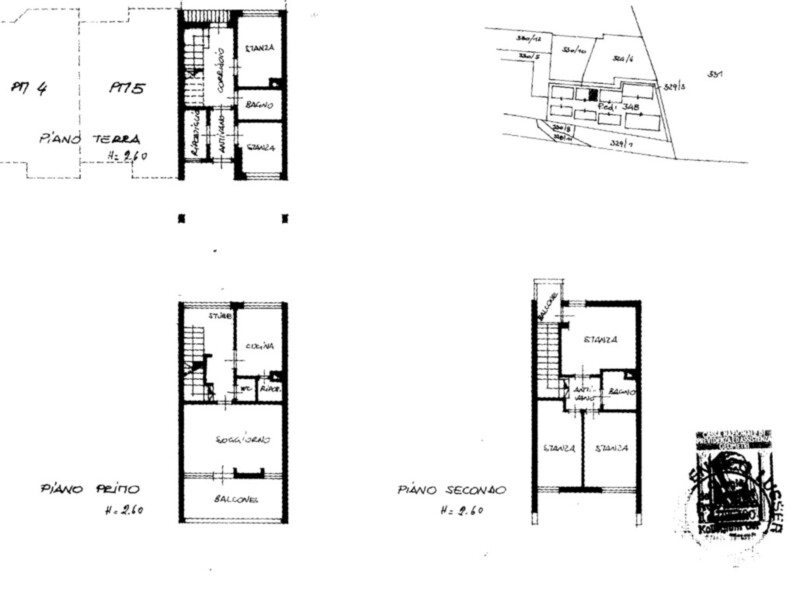
Zum Verkauf steht ein Reihenhaus mit Garage in ruhiger und begehrter Wohnlage von Brixen – Milland. Die Immobilie erstreckt sich über mehrere Stockwerke und bietet großzügige Flächen sowie vielfältige Gestaltungsmöglichkeiten. Ein internes Treppenhaus verbindet alle Ebenen und sorgt für eine klare, funktionale Raumstruktur. Die Raumhöhe von ca. 2,60 m unterstreicht das angenehme Wohngefühl.

Raumaufteilung



Erdgeschoss: Eingang, 2 Schlafzimmer, Abstellraum, Zugang zum kleinen privaten Garten beim Hintereingang und Badezimmer


1. Obergeschoss: Küche mit Abstellraum, Wohnzimmer mit Terrasse und Tages-WC


2. Obergeschoss: 2 Schlafzimmer (eines davon mit kleinem Balkon) und Badezimmer



Das Haus ist komplett zu renovieren, wodurch sich großes Potenzial zur individuellen Neugestaltung nach eigenen Vorstellungen ergibt – ideal, um moderne Wohnkonzepte umzusetzen.

Die Immobilie befindet sich in einer sehr ruhigen Wohngegend, nahe am Bachdamm, ideal für Spaziergänge, Freizeit und Erholung. Gleichzeitig sind das Stadtzentrum von Brixen, Schulen, Einkaufsmöglichkeiten und öffentliche Verkehrsmittel gut erreichbar.

Milland zählt zu den beliebtesten Wohnlagen der Stadt – sonnig, grün und besonders familienfreundlich.

Besondere Merkmale & Vorteile



Nicht konventioniert: volle Freiheit bei Nutzung, Vermietung oder Weiterverkauf


Ruhige, grüne Lage nahe am Bachdamm


Familienfreundlich durch 5 Schlafzimmer


Großzügige Raumaufteilung auf mehreren Ebenen


Renovierungsobjekt mit Potenzial – ideal für Eigennutzer oder Investoren


Balkon, Terrasse und privater Außenbereich



Dieses Reihenhaus bietet eine seltene Gelegenheit in einer der gefragtesten Wohnzonen von Brixen. Dank der nicht konventionierten Nutzung, der ruhigen Lage und der familiengerechten Größe eignet sich die Immobilie ideal für Familien, Paare mit Platzbedarf oder als langfristige Investition.


Mehr Informationen unter: https://www.ruth-immobilien.com/de/immobile/ihr-neues-zuhause-in-milland---reihenhaus-mit-garage-und-viel-gestaltungsspielraum_21774

Ruth Immobilien
Dorfstraße 12 / Via del Paese
39040 Vahrn / Varna (BZ)
Tel. +39 0472 970090

Anbieter

Ruth Immobilien GmbH
Waltherplatz 2
39100 BOZEN
Tel.
+39 0471 090790
Fax.
+39 0471 090791
Schließen