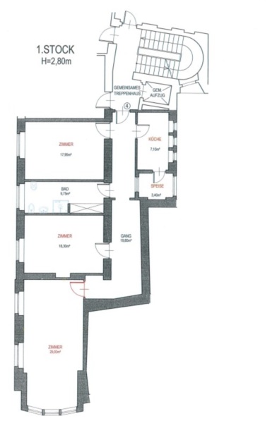
Vierzimmerwohnung von 140 m2 ZWÖLFMALGREIENERPLATZ / BOZEN Altstadt „DIE INVESTITION“
Eckdaten
| Objektart | Wohnung / Etage |
|---|---|
| Ort | Bozen |
| Zimmer | 4 |
| Energieklasse | G |
| Kaufpreis | 550'000 € |
| Gesamtfläche m² | 140.0 |
| Status | Gebraucht |
| Zustand | Teil/Vollrenoviert |
| ID | IW107454 |
Details
| Kaufpreis | 550'000 € |
|---|---|
| Gesamtfläche m² | 140.0 |
Beschreibung
Zwölfmalgreienerplatz, 1. Obergeschoss mit Aufzug. Renoviert, großzügige und einladende Räume. Nur wenige Schritte vom Waltherplatz entfernt: alle Bequemlichkeiten im Zentrum. Derzeit an Studenten der Universität Bozen vermietet, bietet dieses Apartment eine zuverlässige Rendite für clevere Investoren. Verkaufspreis: 550.000 €. Keine MwSt. Sofort abwickelbar.
Video in der Fotogellerie: https://youtu.be/b0nPN6lzl_w
360° Tour: https://kuula.co/share/collection/7Jbd7?logo=0&info=1&fs=1&vr=1&sd=1&thumbs=1
Die hier veröffentlichten Immobilien entsprechen nur einem Teil unseres Immobilienangebotes. Alle anderen Immobilien stellen wir Ihnen gerne im persönlichen Gespräch vor.
Anbieter

Via della Rena 11 (angolo P.zza Walther)
39100 Bolzano

Login
Password vergessen
PDF laden/drucken
Merken







