Großes Büro in toller Lage in Bozen, Gries zu vermieten

Eckdaten

ObjektartBüro/Praxis / Bürofläche
OrtBozen
Kaltmiete8'930 €
Gesamtfläche m²498.0
IDIW109027

Aktionen

PDF laden/drucken remove favorite Merken
Auf ein Bild klicken zum Vergrößern

Details

Kaltmiete8'930 €
Gesamtfläche m²498.0
Sep. WC2

Ausstattung

FahrstuhlPersonenaufzug

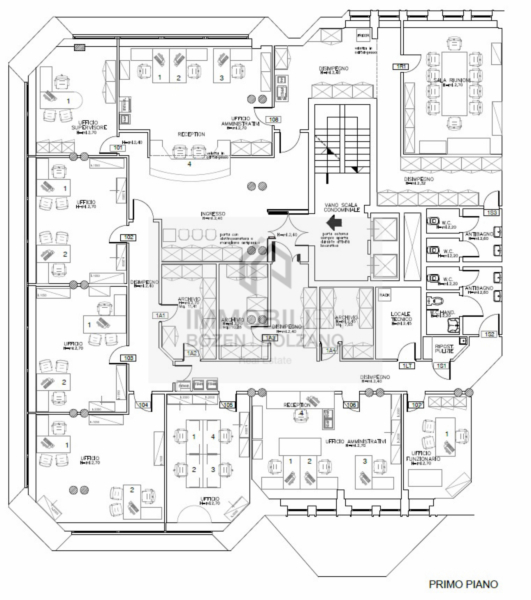
Beschreibung

Zur Vermietung steht ein repräsentatives und großzügig geschnittenes Büro im beliebten Stadtteil Gries. Die im 1. Obergeschoss gelegene Einheit bietet eine Gesamtfläche von ca. 500 m² und überzeugt durch eine durchdachte Raumaufteilung: Ein einladender Eingangsbereich mit Empfang/Rezeption, mehrere Einzelbüros, großzügige Open-Space-Arbeitsbereiche, Besprechungs- und Versammlungsräume sowie Archiv- und Nebenflächen schaffen ideale Voraussetzungen für unterschiedlichste Nutzungskonzepte. Ein Magazin im Untergeschoss kann bei Bedarf zusätzlich angemietet werden.

Anbieter

Immobilien Bozen
Südtiroler Straße 19
39100 Bozen
Tel.
+39/0471/052299
Schließen